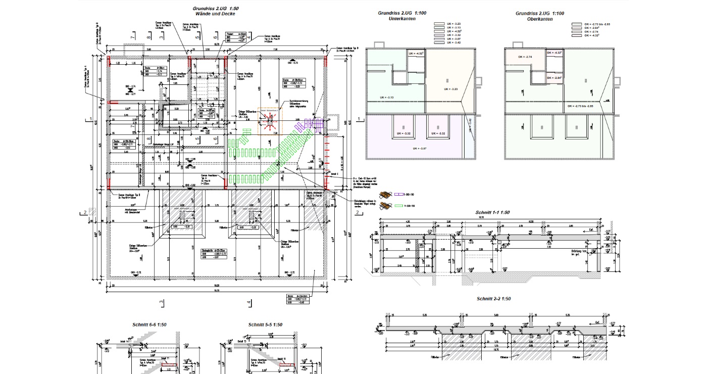
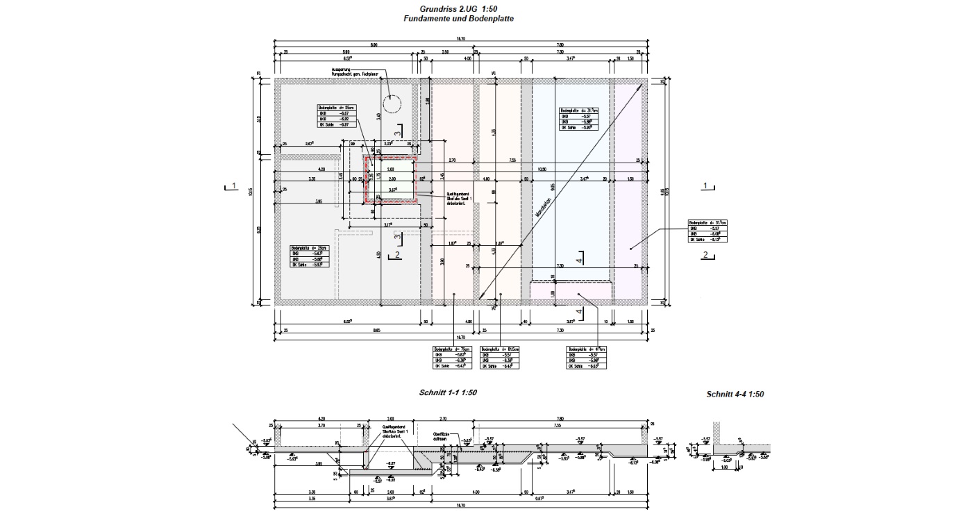
Mehrfamilienhaus

Für dieses Haus haben wir sämtliche Schalungs- und Bewehrungspläne sowie die Aushubpläne erstellt.

Jahr:

2021

Standort:

Zizers, GR

Auftraggeber:

HMQ AG