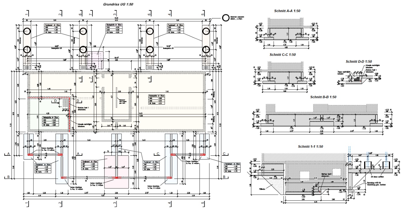
Mehrgenerationenhaus

Für dieses Mehrgenerationenhaus haben wir sämtliche Ausführungspläne ausgearbeitet.