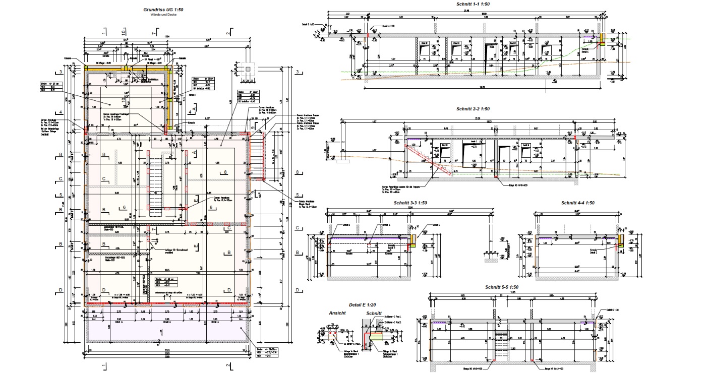
EFH mit Auskragung

Für dieses Haus mit auskragendem Betondach haben wir sämtliche Ausführungspläne erstellt.

Jahr:

2022

Standort:

Surava, GR

Auftraggeber:

HMQ AG