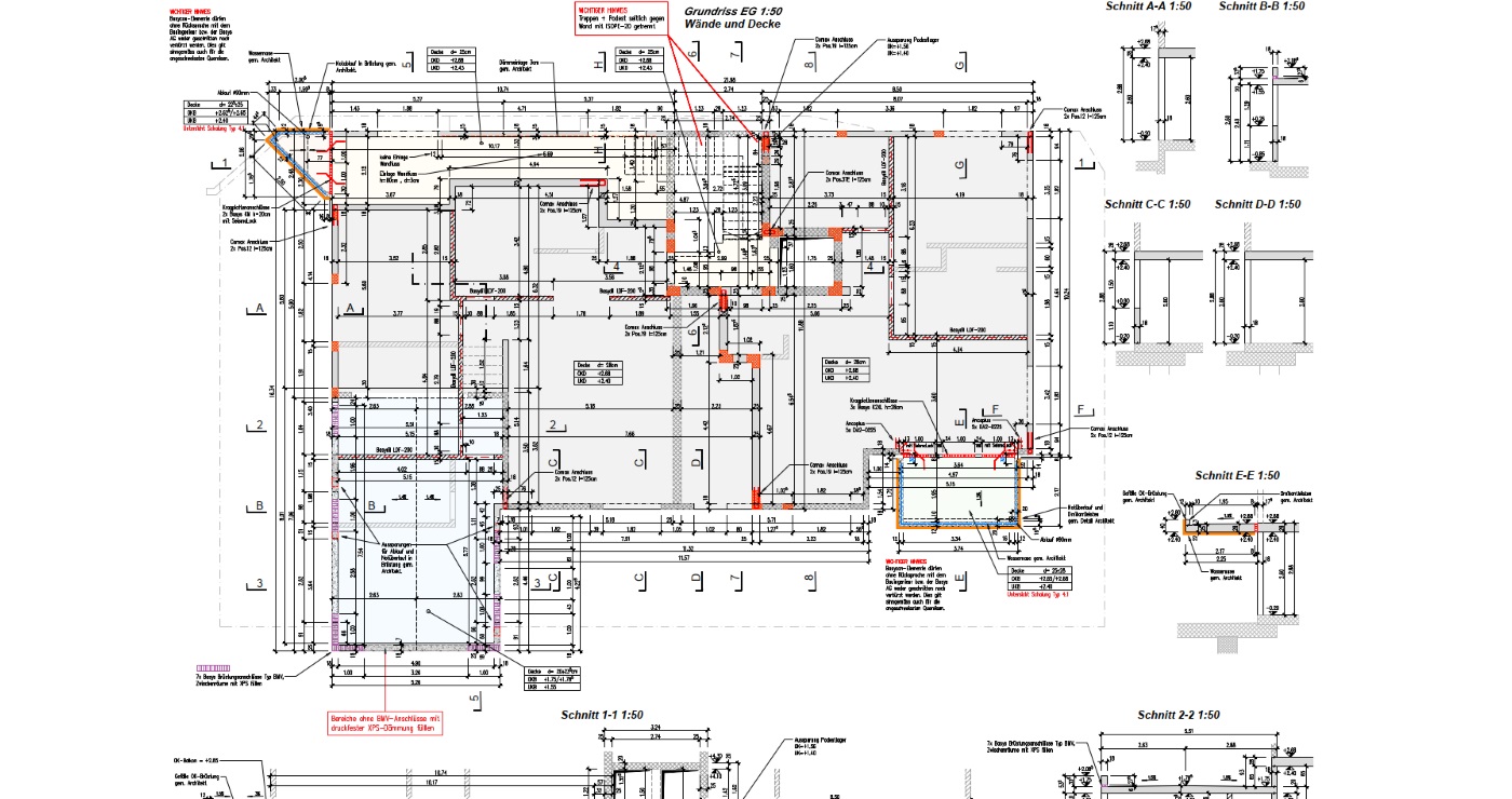
Mehrfamilienhaus in ZH

Für dieses Mehrfamilienhaus in Zürich haben wir sämtliche Ausführungspläne erstellt.

Jahr:

2022

Standort:

Zürich, ZH

Auftraggeber:

HMQ AG