MFH

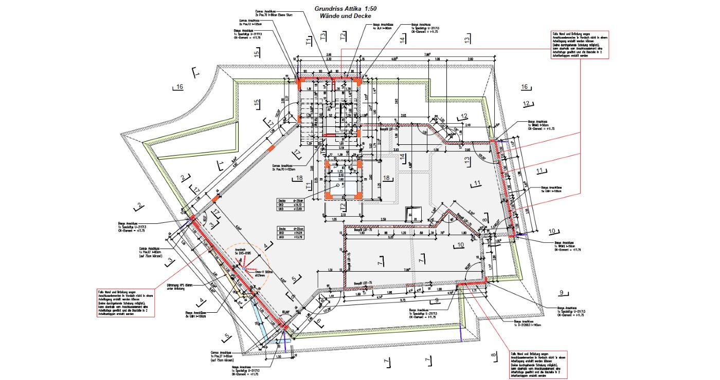
Für dieses Mehrfamilienhaus in Zürich mit besonderem Grundriss durften wir sämtliche Ausführungspläne erstellen.

Jahr:

2023

Standort:

Zürich

Auftraggeber:

HMQ AG